Bad Harzburg:
Eigentumswohnung in Bad Harzburg
Objekt-Nr.: 850

Außenansicht

Balkon

Außenansicht

Badezimmer

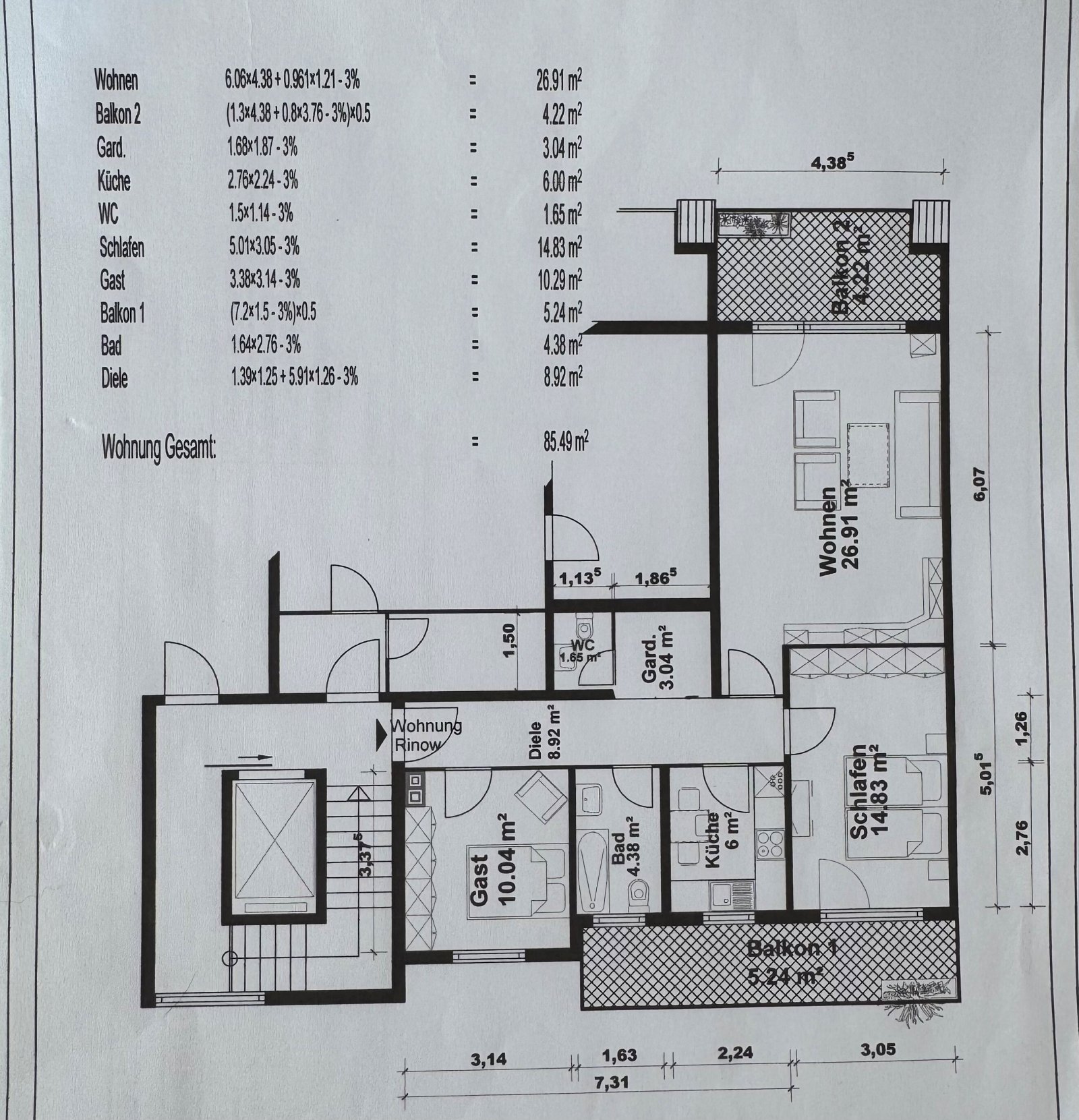
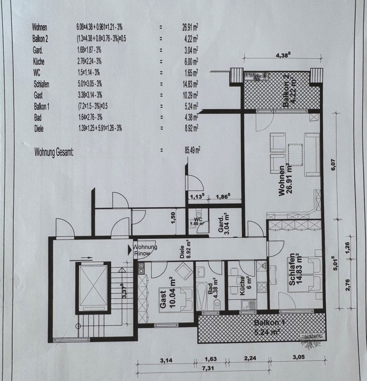
Grundriss





Preis:
179.000 €
Wohnfläche ca.:
85,49 m²
Zimmeranzahl:
3
Die Wohnung befindet sich in der dritten Etage einer Wohnanlage mit insgesamt 19 Einheiten. Sie erreichen die Wohnung über das Treppenhaus oder den Fahrstuhl. Von der zentralen Diele aus gelangen Sie in alle Zimmer der Wohnung: ein Gästezimmer, das Tageslichtbad, das Gäste-WC, die Küche, das Schlaf- sowie das Wohnzimmer. Die letzteren beiden verfügen über einen Balkon, je einen zur Ost- bzw. Westseite.
Ein Kellerraum sowie eine Garage runden das Angebot ab.
Wohnungstyp: Etagenwohnung
Etage: 3
Provisionspflichtig: ja
Provision: vom Kaufpreis 3,57 % inkl. 19 % MwSt.
Bad: Dusche, Fenster
Anzahl Schlafzimmer: 2
Anzahl Badezimmer: 2
Balkon: 2
Gäste-WC: ja
Keller: Abstellraum
Fahrstuhl: ja
Barrierefrei: ja
Seniorengerecht: ja
vermietet: ja
Anzahl der Parkflächen: 1 x Garage, pro Stück 50 €
Qualität der Ausstattung: normal
Baujahr: 1985
Hausgeld: 437 €
Mieteinnahmen p.a.: 7.560 €
Heizung: Zentralheizung
Energieausweistyp: Bedarfsausweis - gültig vom 22.01.2020 bis 21.01.2030
Energieeffizienz-Klasse: C
Baujahr laut Energieausweis: 2004
Bei Abschluss eines Kaufvertrages wird eine Vermittlungs-/ Nachweisprovision in Höhe von 3,57 % inklusive 19 % Mehrwertsteuer auf den Kaufpreis vom Käufer fällig. Wir haben einen provisionspflichtigen Maklervertrag in gleicher Höhe mit dem Verkäufer abgeschlossen § 656c BGB.
Die von uns gemachten Informationen beruhen auf Angaben des Verkäufers bzw. der Verkäuferin. Für die Richtigkeit und Vollständigkeit der Angaben kann keine Gewähr bzw. Haftung übernommen werden. Ein Zwischenverkauf und Irrtümer sind vorbehalten.
Das könnte Ihnen auch gefallen
Ideale Kapitalanlage in der Goslarer Altstadt
Goslar-Altstadt: Großzügige 5-Zimmerwohnung
Hapke Immobilien Management & Verwaltung
Firma Hapke Immobilien
Bismarckstraße1
38640 Goslar
Telefon: +49 5321 709991
Mobil: +49 170 3536996




















